側入式攪拌機
詳細介紹
概述
側入式攪拌機是一種將攪拌機安裝在筒體側壁上的攪拌裝置,大部分主要用于液-液相物料混合,固-液相物料懸浮和溶解等,可以強化相間的傳質,傳熱等;在消耗同等功率情況下,功率消耗僅為頂入式攪拌機的1/3-2/3,成本僅為頂入式攪拌機的1/4-1/3;在大型貯罐中利用普遍,有時大型貯罐中也采用多臺側入式攪拌機一起組合工作,在降低能耗的情況下還能得到更好的攪拌效果。
用途及特點
側入式攪拌機廣泛應用于環保,水處理,沼氣發酵,煙氣脫硫工程,石化,造紙,建筑,食品等大型儲罐的攪拌;
1. 設備運行平穩,安全可靠;
2. 節能環保,能耗低,傳動,攪拌效率高;
3. 結構緊湊合理,操作方便,占地面積小;
4. 投資和運行維護費用都較低;
主要結構
![]() |
![]() |
| 雙支點機架側入式攪拌機C1 | 內支撐架側入式攪拌機C2 |
側入式攪拌機在市場上有多種的結構形式,索孚公司生產的主要有兩種結構形式,一種是雙支點機架側入式攪拌機,另外是配內支撐架的側入式攪拌機,兩種攪拌機根據客戶不同工藝應用環境和需求選型使用;傳動部件有采用V型皮帶,同步帶,齒輪,磁力驅動等不同的傳動方式;密封在大型儲罐攪拌中是至關重要的,我公司根據客戶不同使用環境的需要采用機械密封,填料密封,迷宮式密封,及組合式密封等多種形式;一般大型儲罐的側入式攪拌機會設置密封危機處理機構,故障或維修時客戶可以不需要將灌內物料排空,就可以方便輕松的更換密封環。
1、雙支點機架側入式攪拌機
相對結構簡單些,主要由電機,皮帶輪,雙支點機架,攪拌軸,安裝法蘭,機械密封,填料密封,葉輪等部件組成。適應轉速一般小于350rmp以下;根據不同的物料選擇不同的機械密封。
2. 內支撐架側入式攪拌機主要機構:
整體主要由電機,皮帶輪,電機支架,內支撐架,安裝法蘭,攪拌軸,機械密封,輔助密封機構,葉輪,軸承等部件組成。內支撐架兩端各有一套密封系統,一般采用兩套機械密封安全可靠,如使用環境要求不高,一般會為節省成本而只采用外端一套機械密封的結構形式,或組合密封形式;輔助密封機構,主要是為故障應急和方便維修設計的,在不需要排空罐內物料的情況下,只需要將軸往罐外拉一段距離,軸上的輔助密封件就會進入密封座,轉動一定角度后密封件鎖死,從而防止了物料泄露,放心更換密封環。
![]() |
![]() |
| 內支撐架側入式攪拌機整體剖視圖 | 采用機械密封結構圖 |
內支撐架側入式攪拌機特點:1. 攪拌器近距離雙支點結構剛性更好運行更加平穩可靠,攪拌槳可伸入深度更長,工藝適應性強;如可以適應罐內較高固體含量的固液懸浮攪拌,適應較高粘度流體攪拌等; 2. 轉速適應范圍較廣0-600rmp;3. 采用獨特的雙機械密封和輔助密封結構設計,儲罐的安全性更高,維修更方便;
側入式攪拌機技術參數
1、先進的葉輪設計
運用先進計算流體力學(CFD)軟件,精確的模擬流場,攪拌機安裝位置,葉輪的結構優化等重要參數,以此來保證我們的攪拌設備性能到達理想狀態。
![]() |
![]() |
| 模擬流場1 | 模擬流場2 |
2、槳葉優化設計
槳葉采用計算流體力學方法進行優化設計,確保每次設計均可得到理想的攪拌效率。
![]() |
![]() |
![]() |
| A 型螺旋推進槳 | B 型高效曲線軸流槳 | C 型寬葉軸流槳 |
![]() |
||
| 大型寬葉軸流槳側入式攪拌機 | ||
選擇不同槳葉形式如下:
1、A型螺旋推進槳和B型高效曲線軸流攪拌器適合于處理槽罐較小,粘度較低的流體(小于2500cp),且需要短時間內混合好的流體。例如將添加劑均勻分布于罐內流體中的操作;
2、C型寬葉軸流槳適用于更高粘度(2500~10000cp)流體的混合和固含量較高的液體。例如在沼氣發酵中,固含量較高,流體粘度較大,使用C型槳葉的攪拌設備可處理淤漿粘度達5000cp(固含量10以上)的發酵液。
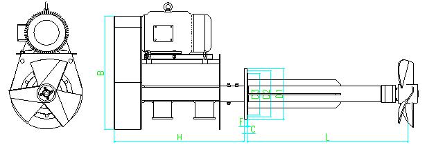
3、內支撐架側入式攪拌機安裝尺寸參數表

| 攪拌機型號 | 電機功率(Kw) | 安裝外型及尺寸 | 攪拌容量(m3) | 重量(Kg) | ||||||||
|---|---|---|---|---|---|---|---|---|---|---|---|---|
| D1 | D2 | D3 | C | F | n-Ø | L | H | B | ||||
| CNC-22 | 2.2 | 395 | 350 | 319 | 26 | 2 | 12-Ø22 | 750 | 950 | 870 | 25-100 | 340 |
| CNC-55 | 5.5 | 490 | 445 | 413 | 26 | 2 | 12-Ø22 | 850 | 950 | 875 | 50-300 | 350 |
| CNC-75 | 7.5 | 540 | 495 | 463 | 28 | 2 | 16-Ø22 | 900 | 950 | 875 | 80-500 | 410 |
| CNC -110 | 11 | 595 | 550 | 518 | 30 | 2 | 16-Ø22 | 1100 | 950 | 875 | 200-1000 | 470 |
| CNC- 185 | 18.5 | 645 | 600 | 568 | 32 |
2 |
20-Ø22 | 1100 | 950 | 875 | 200-1000 | 470 |
| CNC- 300 | 30 | 645 | 600 | 568 | 32 |
2 |
20-Ø22 | 1100 | 950 | 875 | 500--2000 | 500 |
注:表內相關參數只做參考,具體攪拌項目工程已公司設計方案為準;
工程應用
沼氣發酵:攪拌發酵原料與沼氣微生物,使之充分混合,均勻接觸使得微生物可以食料充足,保證正常發酵,提高產氣率。防止原料分成及潔殼,沉淀。
煙氣脫硫:在脫硫中主要使用在漿液罐和吸收塔等大型容器中使用于塔內漿液的攪拌,防止懸浮液沉淀,同時將鼓入的氧化氣體和槳葉充分混合。
其他:大型原油儲罐,制漿造紙,潤滑油儲罐,食用油儲罐,等。
索孚科技公司鄭重承諾,凡購買我公司產品,一年內保修,終生維護。
功能攪拌開啟高效生產,浙江索孚中國攪拌專家,購品質設備,選浙江索孚!
浙江索孚化工設備有限公司專業生產高速分散機、研磨機、乳化機、不銹鋼拉缸,專門配套涂料,染料,顏料,油漆,油墨,膠合劑,樹脂,藥膏,化妝品,造紙,食品,橡塑,復合材料,絕緣材料,磁性材料,其它色漿等化工行業產品的液-固濕法分散、研磨、攪拌、均質、混合、溶解工藝。浙江本土分散機生產廠家,質量有保障,品質看得見, 售后就在您身邊!

















